Assessor Property Search
Sketches for Account #
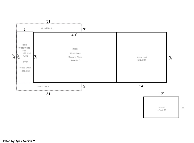
R0006611
View
Bldg #
Date
View
1
10/6/2008
View
1
1/25/2022
Version:
3.1.0.2
We'd like to hear from you. Send us your feedback using
this form
.
All Content © 2006-2026 - Natrona County and its Representatives. All Rights Reserved